Explore Our Services

What We Offer

  • We offer this service for people that are not yet 100% certain of what can be built on their land, whether they own it yet or not. Any money spent on this service is rolled straight into the down payment of the project, in the event that you decide to move forward!

  • We will partner alongside you to take a set of plans and turn it into a home that offers an inviting space and fosters memories for years to come!

  • Custom basement finishing designed to increase usable space, functionality, and long-term home value.

  • Whether it is finally building out a space for your business, or investing in a tried-and-true asset class, Highland Construction Group can take your idea from inspired speculation to real-world revenue opportunity.

  • Land Clearing and Site Prep. Made Simple. Connecting landowners, builders, and homesteaders with vetted land clearing and grading contractors in your area.

Our Process

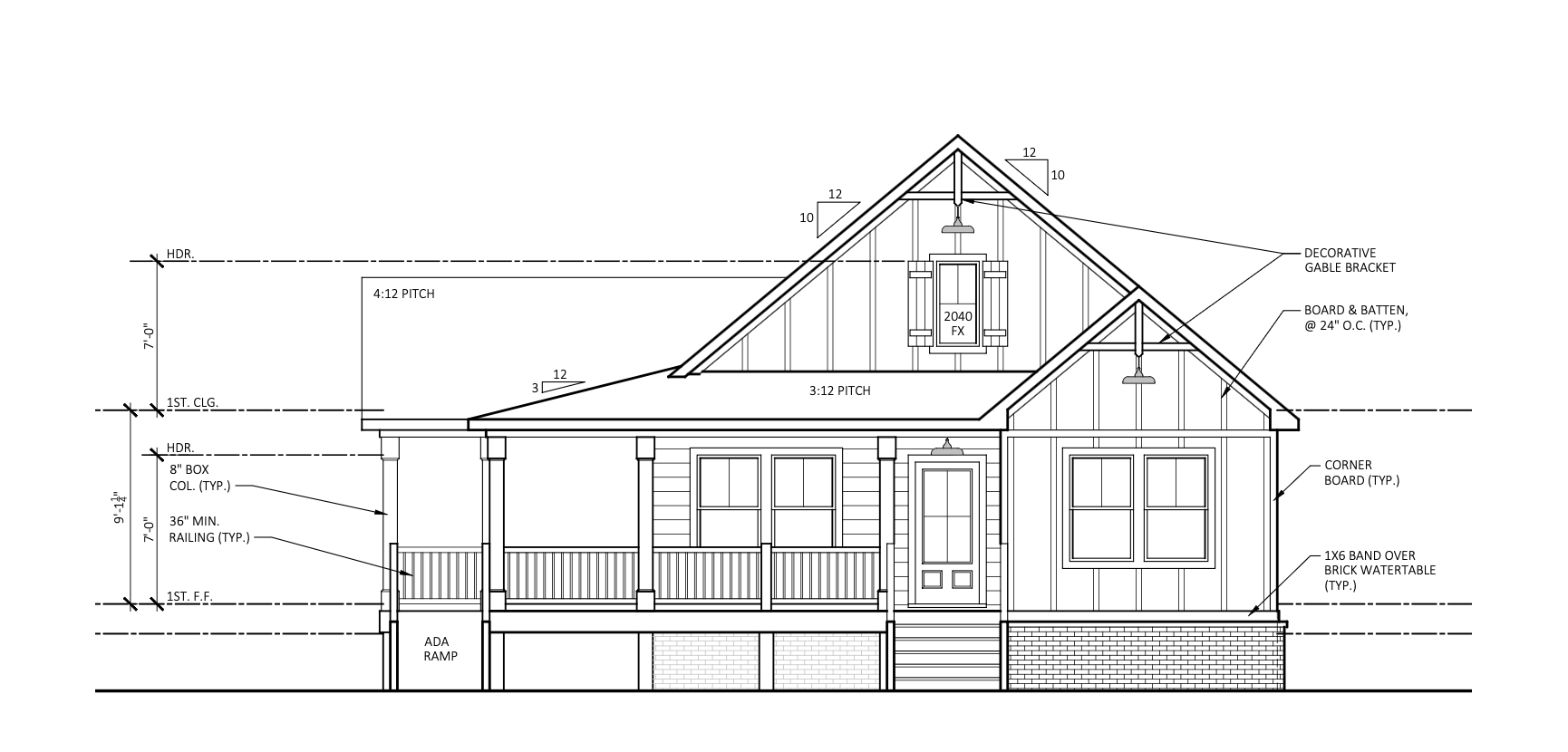
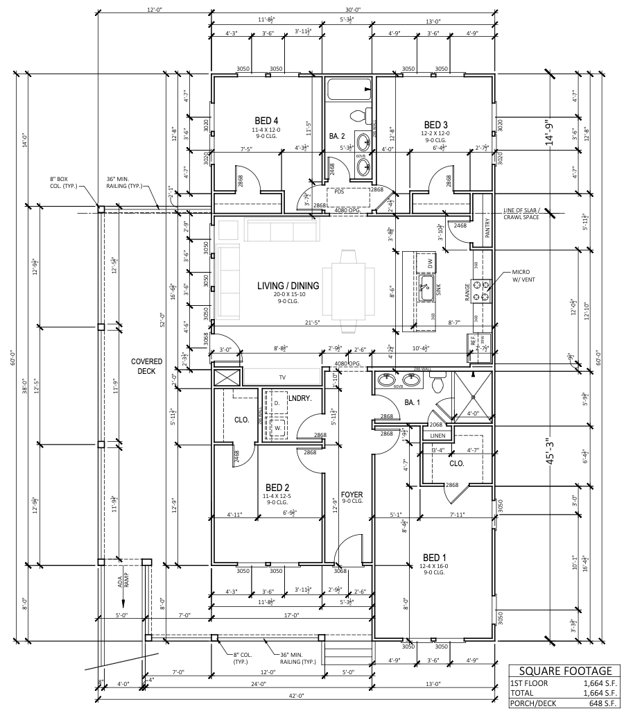
Design

First thing’s first, we work with a drafter on the plans and make all design selections.

Bid

Next, we bid the plans and make sure all parties are comfortable with the estimated construction budget. This provides clarity and comfort with the project!

Permit

On to permitting! Once we are certain we are pleased with the plans and designs, we go to permit with the local building department.

Build!

With all ducks in a row and permit in hand, we hit the ground running and aim to impress with how smooth the rest of the process can be! Planning makes perfect!